Novedades en piscinas y casas de madera
Piscina 350x132 Magnum Toi 2306
1331,00€
Piscina desmontable serie Magnum circular de 132 cmLa Serie Magnum son modelos de piscinas con una altura de 132 cm e incluyen tapiz.La serie Magnum Circular, viene de serie con un filtro de arena de 6 m3/h y con tapiz para proteger el liner de regalo.Contenido piscina magnum:Piscina 132 cm de altura+ filtro de arena + skimmer completo + escalera + tapizDisponible en 3 medidas de altura 1,32 metros:Diámetro 350 cm (11.500 L)Diámetro 460 cm (20.000 L)Diámetro 550 cm (29.000 L)Medida del modelo seleccionado:Diámetro 350 cm (11.500 L)Filtro de arena ToiEste modelo viene equipado con un filtro de arena de 6 m3/h y una bomba de 500 W 0,6 HP. Dispone de un cabezal V6 con 7 posiciones: invierno, contra lavado, enjuague, filtración, desagüe, recirculación y cerrado. Se incluyen las mangueras y la arena necesaria para su funcionamiento. *No se incluye la manguera ni el racor para el desagüe.Skimmer completoLa piscina incluye un skimmer completo, compuesto por el cuerpo del skimmer, marco, junta de goma, tornillos, cestillo, compuerta, 2 racord, adaptador para la barredera, abrazaderas y la boquilla de impulsión.TapizEl tapiz protege al liner del contacto con el suelo, se coloca entre el suelo y el liner. Sirve para proteger el liner de posibles pinchazos.Características piscina desmontable Magnum circular:Estructura:Pared de acero lacado blanco con doble tornillería para garantizar la firmeza. Con tres capas de protección contra la corrosión. Espesor 40/100.Perfiles de acero:Perfiles de acero lacado en blanco. Con tres capas de protección contra la corrosión.Liner:Fabricado en P.V.C. con tratamiento U.V. Espesor 0,4 mm en suelo y pared.Kit de filtración:Filtro de arena 6 m3/h, 400W, 0,6 hp (caballos de potencia).Garantía Toi:3 años para la estructura fuera del suelo.1 año para el liner (soldaduras únicamente).3 años para la filtración y resto de componentes.
PISCINA CALARI - 7.00 x 3.50 x 1.40 M
7980,00€
Colores: Azul, Blanco y Beige.TRANSPORTE A TODA GALICIA (OTROS PUNTOS CONSULTAR).MONTAJE NO INCLUIDO (CONSULTE PRECIO CON MONTAJE Y ACCESORIOS).
PISCINA PACIFIC KIT610W OVALADA 610x375X120CM ALT
2309,00€
Piscina de pared de acero con revestimiento de maderaLINER: Tratamiento anti-ultravioleta-retrasa el envejecimiento del PVC.CHAPA: Laminada en frio con tratamiento de galvanización, fosfatación e imprimación y lacado. Perfilación vertical de la misma para la obtención de una mayor resistencia. Troquelada para skimmer y válvula de retorno del agua.PERFILES: Acero y PVC.Características:- Sistema de vigas laterales.- Liner de PVC color azul 40/100 para las piscinas de 610 x 375 cm.- Perfilería de acero y protectores de inyección.- Capacidad 20893 litros piscina de 610 x 375 cm.- Filtro de arena de 3m3/h, que incluye conjunto de skimmer, mangueras de conexión y arena silex- Escalera de tijera.
PISCINA CONFORT 750 SPA
9490,00€8900,00€
INCLUYE:VASO COMPLETO EN COLOR AZUL O BLANCO ( POSIBILIDAD DE OTROS COLORES 450€ MAS )VASO CON DOBLE FONDO PARA JACUZZI.TRANSPORTE A TODA GALICIA ( OTROS PUNTOS CONSULTAR ) EXPLICACIÓN DE MONTAJE Y PREPARACIÓN DE LA PISCINA, ASI COMO LA SUPERVISIÓN DEL MONTAJE DE LA PISCINA PASO A PASO EN CASA DEL CLIENTE.25 AÑOS DE GARANTIA.MONTAJE NO INCLUIDO. ( CONSULTE PRECIO CON MONTAJE Y ACCESORIOS ) PISCINA MODELO CONFORT 750 SPAEl vaso está fabricado de una sola pieza utilizando capas sucesivas de material compuesto a base de resinas epoxyviniléster y de poliéster junto con fibra de vidrio, tomando una estructura de sándwich con un núcleo térmico. El acabado de la superficie interior del vaso está realizado con Gel Coat Iso Neo-Pentil Glicol sin fibra.El vaso de la piscina presenta forma rectangular con una escalera semicircular (romana) de tres peldaños en uno de los lados menores. La escalera está integrada en el propio vaso. La profundidad aumenta según el eje longitudinal desde la base de la escalera. La coronación perimetral integrada en el vaso es de 10 cm de anchura. Los paramentos verticales, salvo en la escalera, son continuos desde la coronación al fondo de la piscina (sin rebordes interiores).El diseño se caracteriza por sus formas redondeadas, en lugar de aristas en la unión de sus paramentos verticales y horizontales.La piscina Confort 750 es el resultado de la dilatada experiencia en la fabricación de piscinas de fibra de vidrio. A través de rigurosos análisis de resistencia de materiales como los realizados por la industria aeronáutica y del automóvil, mediante los métodos de cálculo por elementos finitos y ensayos, se conocen sus propiedades mecánicas y os coeficientes de seguridad correspondientes.PROPIEDADES MECÁNICASLa piscina modelo Confort 750 presenta unas excelentes propiedades mecánicas confirmadas por los cálculos y ensayos realizados por los laboratorios externos acreditados ENAC, siguiendo métodos de las normas UNE. Los coeficientes de seguridad (C.S.) se obtienen a partir de los análisis por elementos finitos realizados por un Departamento Tecnológico de reconocido prestigio por su larga experiencia en la medición del comportamiento mecánico de piezas realizadas con materiales compuestos.ESTRUCTURACoeficientes de seguridad calculados según UNE 53955- en carga estática enterrada- en carga de 10000 N en pared lateral- en carga puntual sobre el fondo- en carga distribuida sobre el fondoParedes, fondo y escalera: Estructura laminar de fibra de vidrio de tipo E y barrera de protección química epoxyviniléster.Coronación: estructura laminar con insertos metálicos.Refuerzos: angulares verticales de fibra de vidrio tipo E.Ensayo de resistencia de laminado tipo- A tracción: según UNE 53280- A flexión: según UNE 14125ESTANQUEIDADLa conjunción de los materiales utilizados y el proceso de fabricación permiten garantizar la estanqueidad del vaso. Así se garantiza la estanqueidad de sus vasos de poliéster reforzado durante un período de 25 años por causas imputables a su fabricación.CARACTERÍSTICAS DIMENSIONALESLongitud (interior/exterior): 7500/7700 mmAncho (interior/exterior): 3700/3900 mmProfundidad máxima: 1700 mmPendiente horizontal: 8%Conicidad del vaso: 4%CARACTERÍSTICAS FUNCIONALESTipo de escalera: semicircular (romana)Entrada de agua: 3 boquillas de impulsión de PVCSalida/vaciado: 1 sumidero boquilla lateral PVCFiltrado / filtro: 1 skimmer PVC centrado en la paredColor interior: variosOpciones: equipo de filtración, limpieza o calefacción, iluminación subacuática y/o perimetral, entradas/salidas adicionales (TLF, skim, …) hidroterapia, natación contra corriente, etc.CONTROL DE CALIDADCada vaso de piscina Confort 750 se somete tanto a inspecciones en proceso como a un detallado control de calidad tras su desmoldeo efectuándose una doble inspección en el acabado, comprobando que cumple los requisitos establecidos en la norma UNE 53955 y antes de su expedición, durante el proceso de carga comprobando su correcta colocación, trincado y embalaje.PROPIEDADES QUÍMICASLa piscina Confort 750 también presenta unas excelentes propiedades químicas, resultando la ausencia de osmosis tras los ensayos realizados.Los ensayos aplicados según norma UNE 53955 para medir la respuesta del material utilizado confirman el excelente comportamiento del Gel-Coat Iso Neopentilglicol y del laminado con resina epoxyviniléster, tanto por la estabilidad del color frente a las radiaciones UV como su resistencia a la acción del agua.Resistencia química: cambio de color 4/5 (UNE 20105-A02)(según UNE 53955) pérdida de brillo 12/40 (UNE 2813)Resistencia al agua: cambio de color 3/5 (UNE 20105-A02)(según UNE 53955) pérdida de brillo 15/40 (UNE 2814)Resistencia acetona: Cumple los requisitos UNE 53955Cumple todos los requisitos de aptitud de la norma UNE 53955, siendo por ello un producto de calidad contrastada.
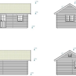
CASA DE MADERA CATHERINE 244,6 M2
136900,00€
Vivienda unifamiliar aislada en dos plantas, construida con sistema tradicional (tronco laminado). Tiene una superficie construida de 230,2m2 distribuida en zona de día formada por comedor-estar, cocina con dispensa, baño de servicio y biblioteca. Zona de noche formada por 4 habitaciones en segunda planta, dos de ellas con vestidor. En la segunda planta también tiene dos baños. Al estar construida en tronco laminado en la parte interior se puede apreciar las vigas y los encajes de las paredes. Este tipo de casa es para a quienes les gusta estar en un sitio rustico y tradicional. En la parte exterior tiene una terraza con balcon de 5,4 + 5,4 + 3,6m2. El tejado tiene mucha pendiente para darle un estilo a las casas nórdicas. Todos nuestros modelos de casas de madera se pueden fabricar y distribuir a gusto del cliente.
PISCINA SERIE MOOREA KPEOV5059M OVALADA 500X300X150 ALTO
3859,00€
Piscina especial para enterrar en kit completo, compuesto de piscina ovalada de 500x300x150 de altura, filtro de arena de silex de 10.000 l/h, liner azul de 50/100 de espesor, escalera de inox de 4 peldaños, manta protectora de suelo, skimmer y valvulas de retorno, rollo de manguera para el conexionado al equipo depurador y la racorderia necesaria para el conexionado.Características de la Piscina Enterrada Gre KPEOV5059:Forma: Ovalada.Medidas: 500x300 cm.Altura: 150 cm.Espacio necesario: 700x500x165 cm.Capacidad: 16.015 litros.Liner: PVC color azul 75/100. tratamiento anti-ultravioleta (retrasa el envejecimiento del PVC).Pared: Chapa laminada en frío con tratamiento de galvanización, fosfatación e imprimación con un grosor de 70/100. Troquelada para skimmer, válvulas de retorno y limpiafondos y focos.Escalera: Escalera STANDARD para piscina enterrada de 4 peldaños Inoxidable.Filtro: Filtro de arena de 8 m3/h + skimmer.Incluye Mangueras de conexión, Kit de raccord, cola, boquilla de impulsión y toma de limpiafondos.Tapiz: Tapiz de suelo de polietileno 115 g/m2.Peso: 413 Kg.Fabricante: Piscinas Gre.Garantía en partes metalicas: 4 años.Garantía enresto de componentes: 2 años.
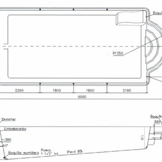
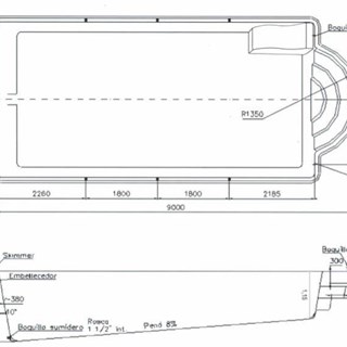
PISCINA DESBORDANTE 8M X 4M X 1,50M ALTO.
29900,00€
Incluye:Excavación y hormigonado de todo el vaso de la piscina, con 2 laterales desbordantes.Deposito en bloque armado, recebado y revestido de liner armado electrosoldado de 150/100 de grosor de 6000 litros de capacidad.Sala de maquinas adosada a la piscina en bloque armado, con escalera de acceso.Estructura de bloque armado con varillas y mallazo, recebado a toda la piscina.Recubrimiento de liner armado electrosoldado, grosor 150/100.( color a escoger )4 focos de led blanco, 4 impulsores de fondo, 1 toma de limpiafondos, 1 toma de desague y racords y tubería necesarias para toda la instalación, en tuberia de presión rígida 15 atmosferas, racords para jacuzzi.Equipo depurador, compuesto por un filtro laminado de 750, relleno de vidrio filtrante, 2 motores de 1 cv especial salino, 1 cuadro electrico especifico piscina y 1 clorador salino para 100000 litros.Piedra de coronación para toda la piscina.Mano de obra de toda la instalación.
PISCINA SERIE MADAGASCAR KPE4259 REDONDA 420X150 ALTO
2839,00€
Piscina especial para enterrar en kit completo, compuesto de piscina redonda de 420x150 de altura, filtro de arena de silex de 8.000 l/h, liner azul de 75/100 de espesor, escalera de inox de 4 peldaños, manta protectora de suelo, skimmer y valvulas de retorno, rollo de manguera para el conexionado al equipo depurador y la racorderia necesaria para el conexionado.Características de la Piscina Enterrada Gre KPE4259:Forma: Redonda.Medidas: 420 cm de diámetro.Altura: 150 cm.Espacio necesario: 620x165 cm.Capacidad: 18.840 litros.Liner: PVC color azul 75/100. tratamiento anti-ultravioleta (retrasa el envejecimiento del PVC).Pared: Chapa laminada en frío con tratamiento de galvanización, fosfatación e imprimación con un grosor de 70/100. Troquelada para skimmer, válvulas de retorno y limpiafondos y focos.Escalera: Escalera STANDARL para piscina enterrada de 4 peldaños Inoxidable.Filtro: Filtro de arena de 8 m3/h + skimmer.Incluye Mangueras de conexión, Kit de raccord, cola, boquilla de impulsión y toma de limpiafondos.Tapiz: Tapiz de suelo de polietileno 115 g/m2.Peso: 265 Kg.Fabricante: Piscinas Gre.Garantía en partes metalicas: 4 años.Garantía enresto de componentes: 2 años
PISCINA CONFORT 800 SPA
9300,00€
INCLUYE:VASO COMPLETO EN COLOR AZUL O BLANCO ( POSIBILIDAD DE OTROS COLORES 450€ MAS )VASO CON DOBLE FONDO PARA JACUZZI.TRANSPORTE A TODA GALICIA ( OTROS PUNTOS CONSULTAR ) EXPLICACIÓN DE MONTAJE Y PREPARACIÓN DE LA PISCINA, ASI COMO LA SUPERVISIÓN DEL MONTAJE DE LA PISCINA PASO A PASO EN CASA DEL CLIENTE.25 AÑOS DE GARANTIA.MONTAJE NO INCLUIDO. ( CONSULTE PRECIO CON MONTAJE Y ACCESORIOS ) PISCINA MODELO CONFORT 800 SPAEl vaso está fabricado de una sola pieza utilizando capas sucesivas de material compuesto a base de resinas epoxyviniléster y de poliéster junto con fibra de vidrio, tomando una estructura de sándwich con un núcleo térmico. El acabado de la superficie interior del vaso está realizado con Gel Coat Iso Neo-Pentil Glicol sin fibra.El vaso de la piscina presenta forma rectangular con una escalera de cuatro peldaños en paralelo a dos tumbonas en los laterales. La escalera está integrada en el propio vaso. La profundidad aumenta según el eje longitudinal desde la base de la escalera. La coronación perimetral integrada en el vaso es de 10 cm de anchura. Los paramentos verticales, salvo en la escalera, son continuos desde la coronación al fondo de la piscina (sin rebordes interiores).El diseño se caracteriza por sus formas redondeadas, en lugar de aristas en la unión de sus paramentos verticales y horizontales.La piscina Confort 800 SPA es el resultado de la dilatada experiencia en la fabricación de piscinas de fibra de vidrio. A través de rigurosos análisis de resistencia de materiales como los realizados por la industria aeronáutica y del automóvil, mediante los métodos de cálculo por elementos finitos y ensayos, se conocen sus propiedades mecánicas y os coeficientes de seguridad correspondientes.PROPIEDADES MECÁNICASLa piscina modelo Confort 800 SPA presenta unas excelentes propiedades mecánicas confirmadas por los cálculos y ensayos realizados por los laboratorios externos acreditados ENAC, siguiendo métodos de las normas UNE. Los coeficientes de seguridad (C.S.) se obtienen a partir de los análisis por elementos finitos realizados por un Departamento Tecnológico de reconocido prestigio por su larga experiencia en la medición del comportamiento mecánico de piezas realizadas con materiales compuestos.ESTRUCTURACoeficientes de seguridad calculados según UNE 53955- en carga estática enterrada- en carga de 10000 N en pared lateral- en carga puntual sobre el fondo- en carga distribuida sobre el fondoParedes, fondo y escalera: Estructura laminar de fibra de vidrio de tipo E y barrera de protección química epoxyviniléster.Coronación: estructura laminar con insertos metálicos.Refuerzos: angulares verticales de fibra de vidrio tipo E.Ensayo de resistencia de laminado tipo- A tracción: según UNE 53280- A flexión: según UNE 14125ESTANQUEIDADLa conjunción de los materiales utilizados y el proceso de fabricación permiten garantizar la estanqueidad del vaso. Así se garantiza la estanqueidad de sus vasos de poliéster reforzado durante un período de 25 años por causas imputables a su fabricación.CARACTERÍSTICAS DIMENSIONALESLongitud (interior/exterior): 7900/8100 mmAncho (interior/exterior): 3400/3600 mmProfundidad máxima: 1500 mmPendiente horizontal: 0%Conicidad del vaso: 4%CARACTERÍSTICAS FUNCIONALESTipo de escalera: semicircular (romana)Entrada de agua: 2 boquillas de impulsión de PVCSalida/vaciado: 1 sumidero boquilla lateral PVCFiltrado / filtro: 1 skimmer PVC centrado en la paredColor interior: variosOpciones: equipo de filtración, limpieza o calefacción, iluminación subacuática y/o perimetral, entradas/salidas adicionales (TLF, skim, …) hidroterapia, natación contra corriente, etc.CONTROL DE CALIDADCada vaso de piscina Confort 800 SPA se somete tanto a inspecciones en proceso como a un detallado control de calidad tras su desmoldeo efectuándose una doble inspección en el acabado, comprobando que cumple los requisitos establecidos en la norma UNE 53955 y antes de su expedición, durante el proceso de carga comprobando su correcta colocación, trincado y embalaje.PROPIEDADES QUÍMICASLa piscina Confort 800 SPA también presenta unas excelentes propiedades químicas, resultando la ausencia de osmosis tras los ensayos realizados.Los ensayos aplicados según norma UNE 53955 para medir la respuesta del material utilizado confirman el excelente comportamiento del Gel-Coat Iso Neopentilglicol y del laminado con resina epoxyviniléster, tanto por la estabilidad del color frente a las radiaciones UV como su resistencia a la acción del agua.Resistencia química: cambio de color 4/5 (UNE 20105-A02)(según UNE 53955) pérdida de brillo 12/40 (UNE 2813)Resistencia al agua: cambio de color 3/5 (UNE 20105-A02)(según UNE 53955) pérdida de brillo 15/40 (UNE 2814)Resistencia acetona: Cumple los requisitos UNE 53955Cumple todos los requisitos de aptitud de la norma UNE 53955, siendo por ello un producto de calidad contrastada.
SAUNA MADERA LEILA 2 35M2
13799,00€
La Casa de Madera Leila 2 es una sauna para jardín de abeto nórdico de 70 milímetros de grosor. Las dimensiones de ésta casa de madera son de 600 x 550 cm. y una superficie de 35 m2. Dispone de salón, zona húmeda , zona sauna seca y area de dormir en planta superior .La casa de madera Leila 1 es ideal para relajarse y descansar. Características: - Materiales: Fabricada con madera de abeto nórdico de 70 mm - Superficie: 35 m2 (20 m2 en planta baja + 14,5 m2 en planta piso)+ 10,4 m2 terraza - Dimensiones : 600 x 550 cm - Dos puertas de entrada acristalada con cerradura. - Ventanas con cristales dobles de 3-9-3 mm. - Cubierta a dos aguas. - Suelo de madera de 28 mm. Opciones no incluídas: -Acabado de lasur o pintura -Cubierta teja asfáltica o Tégola americana -Montaje del producto en su destino. -Transporte
PISCINA ILHA DO MEL 4.00 x 2.30 x 1.00 M
5170,00€
Colores: Azul, Blanco y Beige.TRANSPORTE A TODA GALICIA (OTROS PUNTOS CONSULTAR)MONTAJE NO INCLUIDO. (CONSULTE PRECIO CON MONTAJE Y ACCESORIOS).
SPA MODELO MITTO
6776,00€
Descripción general Potencia de HidromasajeLos 41 jets de hidroterapia ofrecen un masaje complejo y potente por todo el cuerpo, el cual es soportado por una bomba de alta presión de 2 velocidades que nos garantiza una alta presión de hidromasaje. La presión de agua puede ajustarse a través de la válvula reguladora de aire ajustando el masaje a las necesidades de cada cliente. El Modelo Mitto también cuenta con válvula reguladora de caudal de agua que permite elegir la canalización de potencia entre sus asientos y de esta forma poder desviar la potencia máxima a cualquiera de sus dos posiciones. Consumo de EnergíaEl Modelo Mitto tiene un consumo eléctrico máximo de 5.2 Kw pudiendo ser reducido mediante el cambio de potencia de la resistencia eléctrica. La escasa capacidad de agua conlleva que el consumo diario de calefacción sea lo más limitado posible para un Spa. Por otro lado la electrónica BALBOA WATER GROUP (EE.UU) permite disminuir el consumo en calefacción activando el Modo ECONOMY mediante el cual conseguimos calentar el agua solo en periodos de filtración. GS Series Balboa Water Group (EE.UU.)La familia Gs se basa en una plataforma de control universal que aumenta la flexibilidad de las funciones al tiempo que reduce los problemas de instalación y configuración. Las unidades incorporan la tecnología de sonda de temperatura patentada M7 de Balboa, que elimina los interruptores de presión más propensos a fallos y simplifica el proceso de instalación al no tener que perforar agujeros adicionales en el spa. Las características fundamentales de esta serie son durabilidad, funcionalidad y fácil manejo. Aristech Acrylics (EE.UU.)La importancia de la calidad de la lámina acrílica en un sistema de hidromasaje es muy relevante ya que es la única pieza que no puede sustituirse. Por lo general, la vida útil de un sistema de hidromasaje viene marcada por la resistencia del acrílico, en Goccia Spa sabemos que cuanta más durabilidad ofrezca, más longevidad alcanzará el sistema. Aristech Acrylics, LLC es líder en el mercado mundial de aplicaciones de láminas acrílicas, utilizadas en encimeras, bañeras, duchas y en spas de interior como de exterior y es actualmente uno de los tres fabricantes de acrílico que pueden producir una lámina de colada continua. Alta Resistencia Mueble PVCEl mueble de PVC está fabricado para soportar las condiciones climatológicas más adversas como frío, calor y humedad durante un largo período de años. Diseñados en paneles largos, anchos y horizontales y están disponibles en dos colores perfectos para cualquier combinación tanto en decoración interior como exterior. CromoterapiaEl Modelo Mitto dispone de un led subacuático de 5 pulgadas con cambio secuencial multicolor que permite iluminar sus 400 litros causando en el usuario una sensación de satisfacción general gracias a los múltiples beneficios de la cromoterapia. OrnamentaciónEl Modelo Mitto dispone de una cascada led que impulsa una lámina de agua iluminada que por un lado otorgará sensación de relajación gracias al efecto del sonido del agua que tiene la cualidad de producir un efecto sosegador y sanativo y por otro lado aumentará de forma considerable la cromoterapia del Spa.Características Técnicas Modelo : MittoMedidas : 190x135x73 cmSistema Electrónico : BALBOA WATER GROUPAcrílico : ARISTECH ACRYLICSCapacidad Personas : 2 personasPosiciones : 2 tumbadosReposacabezas : 2 pcsTotal Jets : 41 pcsSurfing Rotating Jets 5? : 1 pcsJets Agua 3? : 4 pcsJets Agua 2.5? : 2pcsSmall Jets 2? : 32 pcsCascada Led : 1 pcsLeds 2? : 2 pcsLeds Subacuático 5? : 1 pcsPeso Neto : 260 KgsCapacidad de Agua : 430 LEspecificaciones Bombas de Hidromasaje de doble velocidad: 1x3CvCalentador : 1x3KwOzonizador : 1 pcsVálvulas Desviadoras 1 pcsVálvulas Ventury 1 pcsCubierta Térmica : 1 pcsEscalera de Acceso : 1 pcsTransporte no incluido.Opciones Estructura y CubiertaBase de fibra de vidrio : INCLUIDAEstructura metálica de alta resistencia : INCLUIDACubierta térmica : INCLUIDAEscalera de acceso : INCLUIDA OpcionesFiltración por arena o lecho vítreoBarandilla de accesoLevantador de coberturaDosificación automática de QuímicosSistema inalámbrico Bluetooth
Haga su casa de madera o piscina con nosotros
En nuestra tienda online encontrará diferentes tipos y diseños de casas de madera, así como diferentes modelos de piscinas que podrá adquirir directamente a través de está página de una manera fácil y rápida, contando siempre con el respaldo de una empresa que aporta total confianza y responsabilidad en todos sus trabajos.
¿Necesitas ayuda?
Llámanos o escríbenos
Envío gratis*
100% PAGO SEGURO



































